PROJETO ONLINE – VAMOS FAZER?




capa

slide 1
Como é ainda uma forma muito nova de atender ao cliente, vamos fazer uma demonstração passo-a-passo. Vamos lá?

PASSO 1

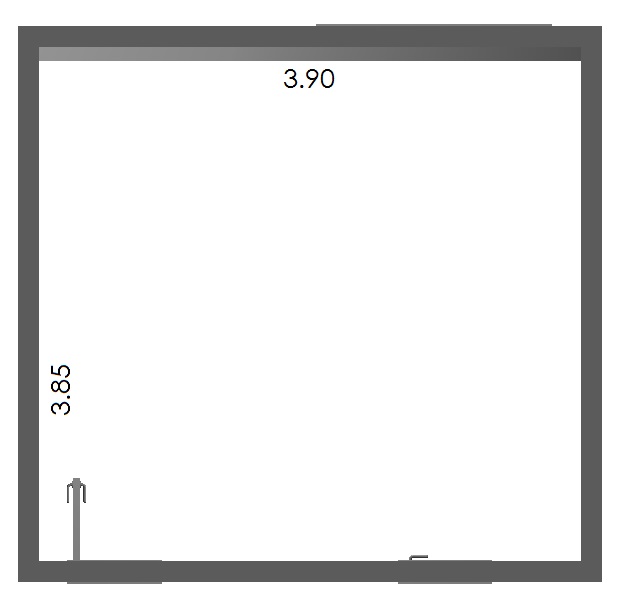
slide 2

 Recebemos uma planta esquemática do cliente, com as medidas do local e algumas fotos.

Lembre-se, é para áreas menores que 50 m². (3.85 x 3.90 = 15.02 m²)

passo1

PASSO 2

O cliente envia, junto com as imagens, as informações sobre o que deseja:

Esse é o quarto da minha filha, que tem 20 anos e estuda letras. Ela adora ler e tem muitos livros. Além disso, precisa de um lugar para estudar e guardar suas roupas mais arrumado, pois o armário está muito velho e pequeno.

Por ultimo, ela gostaria de barrar um pouco a visibilidade da sua cama, para ter mais privacidade. Ela é discreta, e não quer nada em tons de azul. O piso é em cerâmica areia, bem claro. O teto é rebaixado em gesso, mas liso, sem detalhes.
Aguardo suas sugestões”

slide 33

PASSO 3

Iniciamos o estudo e fazemos a planta baixa do projeto.

passo2

passo3

PASSO 4

Estudo para avaliação do cliente

e1

ESTUDO

e2

PASSO 5

Após a solução de volumes e espaço, vem a escolha de cores e materiais.
O projeto online não inclui detalhamento
.

slide 5

slide 6

 Apresentamos o projeto na opção de cor escolhida pelo cliente, em tons neutros.

PLANTA PERSP

PLANTA

VISTA

VISTA

VISTA 1

VISTA 1

VISTA 2

VISTA 2

VISTA 3

VISTA 3

VISTA 4

VISTA 4




Advertising